На днях в Костомукше прошли публичные слушания. Вопрос, который на них рассматривали, связан с развитием нашего города. Угадайте, сколько горожан пришло на них? Правильно – ни одного, кроме сотрудников администрации и корреспондента «64 параллели».
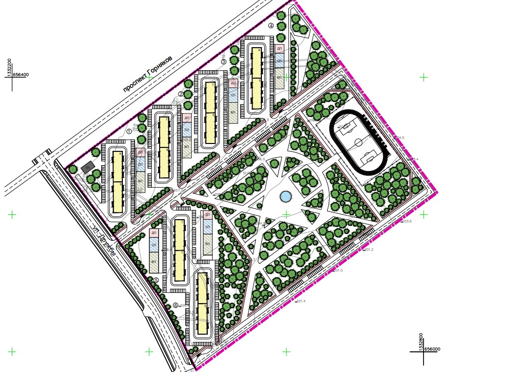
Пусть публичные слушания носят и рекомендательный характер, но участие в них – это возможность задать вопросы и высказать своё мнение. Неужели никого из костомукшан не заинтересовала новость о том, что уже готова документация по планировке территории нового жилого района? А там, между прочим, предусмотрено выделение земельных участков под строительство шести многоквартирных домов этажностью от 5-6 до 9 этажей!

Район потенциальной застройки расположен на пересечении проспекта Горняков и улицы Дружбы. Кроме многоквартирных домов, здесь предусмотрено размещение парковой зоны, спортивных и детских площадок и даже стадиона. О том, что содержится в проекте, рассказали по видеосвязи исполнители документации из Ленобласти.
Что заинтересовало меня больше всего, так это запроектированные контейнерные площадки у новых домов. На мой вопрос, действительно ли они там появятся, специалисты администрации ответили, что это решение принимают собственники дома. Но в проекте такие площадки должны быть указаны в соответствии с требованиями законодательства.

Проекты планировки и межевания территории нужны для формирования участков для будущего жилищного строительства. Как объяснили в администрации, один из отмежёванных участков планируется для строительства дома для переселенцев из аварийного жилья из других районов Карелии. Остальные участки будут в будущем доступны для застройщиков, которые захотят выйти на костомукшский рынок строительства жилья.
Теперь, после публичных слушаний, решение о том, допускать или нет такую планировку территории, будет принимать глава округа.









